

Aussevielle - Pyrénées-Atlantiques
6 Chem. de Lartigalot
À partir de 78 000 €
de 519 m² et 692 m²
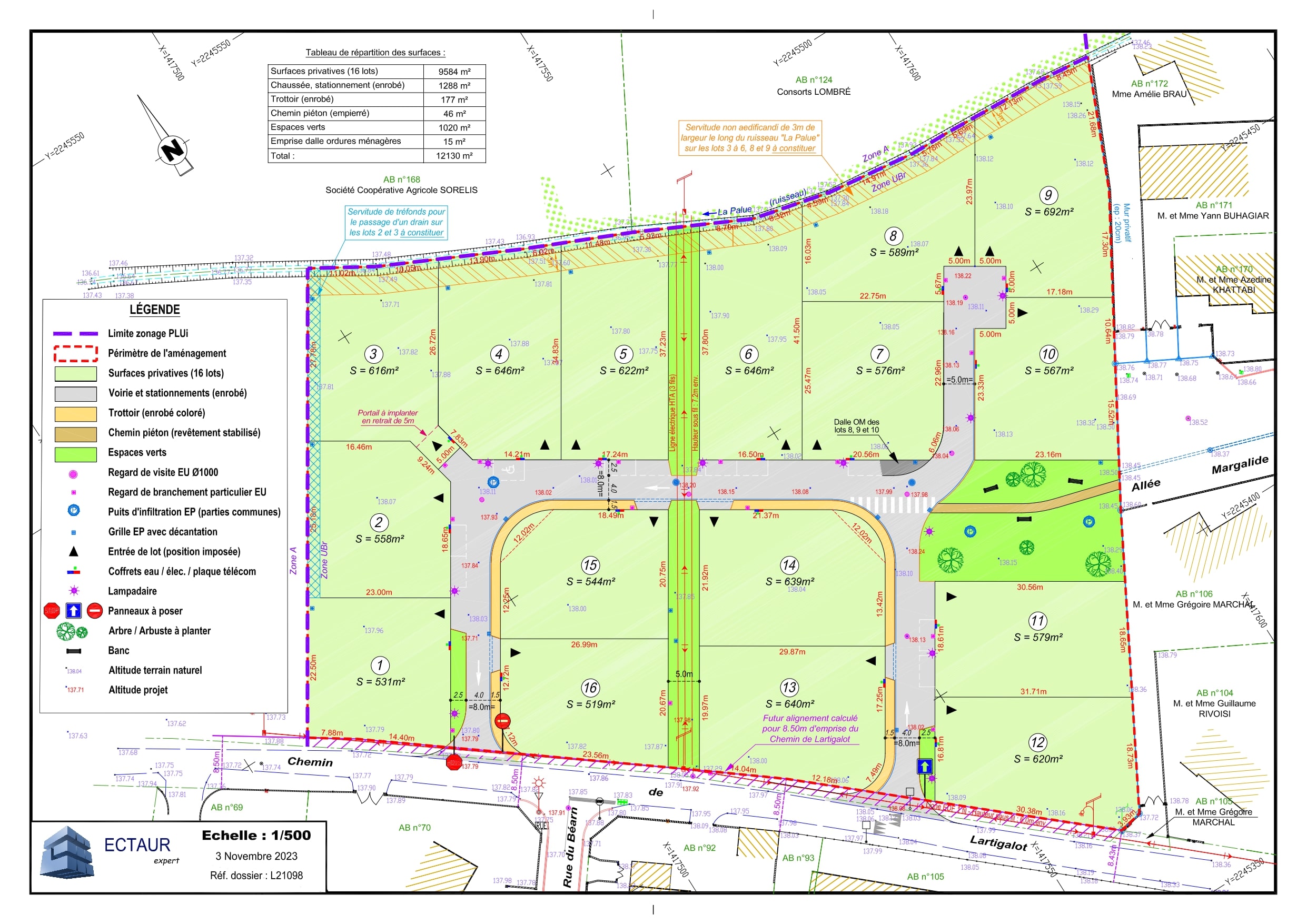
Le lotissement Lartigalot propose 16 terrains à bâtir à Aussevielle, avec des superficies comprises entre 519 m² et 692 m².
Les parcelles sont entièrement viabilisées (eau potable, électricité, tout-à-l’égout) et libres de constructeur, offrant une totale liberté pour concevoir un projet de maison sur mesure, en résidence principale comme secondaire.
Implanté chemin de Lartigalot, ce lotissement à taille humaine s’inscrit dans un cadre résidentiel recherché, propice à un projet de vie durable et serein.
―CONTACTEZ-NOUSSéléctionnez les documents dont vous avez besoin puis cliquez sur télécharger pour obtenir votre fichier .zip
Options et réservations via "Mon espace"
Remplissez ce formulaire si vous êtes intéressés par le programme Terrains à bâtir à Aussevielle (64).
« * » indique les champs nécessaires